





Nearby Schools
Marion Jordan Elementary SchoolElementary School
Thomas Jefferson Middle SchoolMiddle School
Wm Fremd High SchoolHigh School
Description
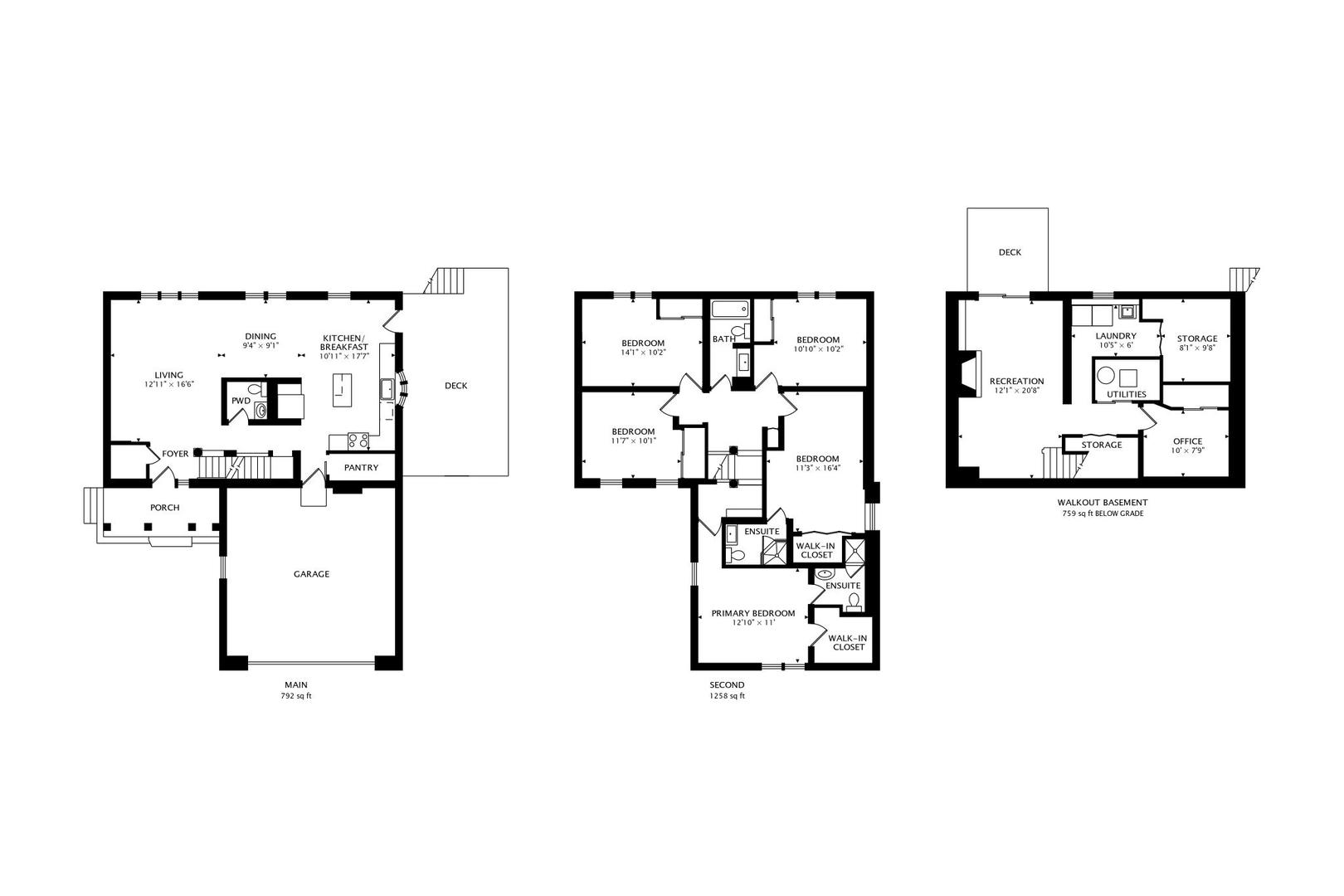
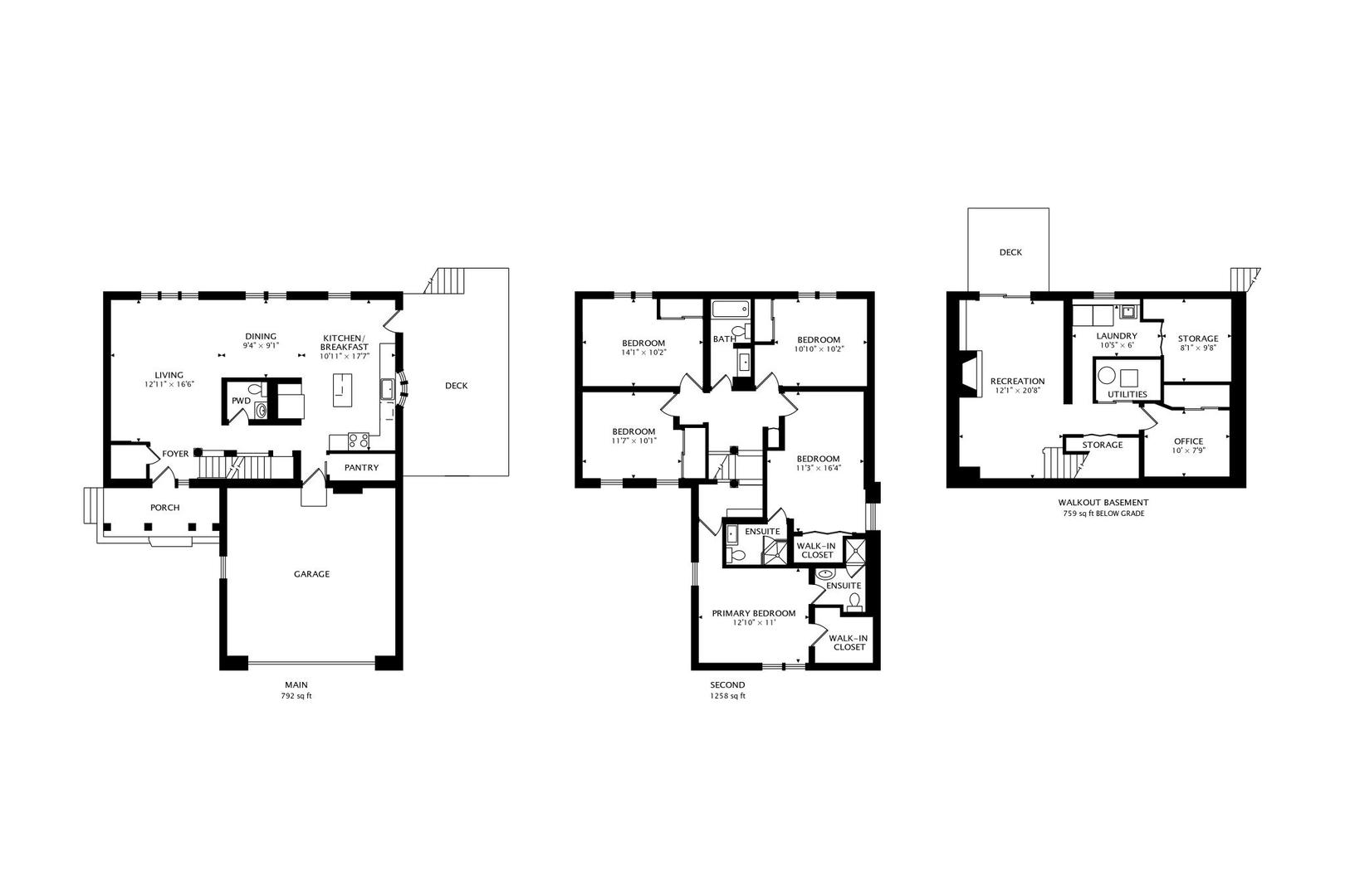
Updated FREMD 5 bedroom!! Tucked away on a serene CUL-DE-SAC and a walk-out basement backing to a peaceful wooded setting! Located in the highly sought-after Colony Point neighborhood and feeding into top-rated Marion Jordan Elementary, Thomas Jefferson Middle School, and award-winning Fremd High School, this home delivers the space, setting, and lifestyle today's buyer is after. Step inside to a bright, airy layout filled with natural light, gleaming hardwood floors, and elegant crown molding throughout. The open floor plan creates effortless flow for both everyday living and entertaining. The pristine kitchen is the heart of the home, featuring gorgeous slate countertops, oversized island with seating, abundant cabinetry, and stainless steel appliances, including a NEW refrigerator (2021) and NEW dishwasher (2024). Just off the kitchen, step out to your elevated deck complete with a pergola, perfect for dining alfresco, unwinding, or firing up the grill while overlooking your expansive, fully fenced backyard and wooded backdrop. Upstairs, the spacious primary suite offers a true retreat with a walk-in closet and ensuite bath, while 4 additional bedrooms provide flexibility, and one bedroom with its own ensuite bathroom. Well-appointed hall bath adds convenience. The WALK-OUT lower level expands your living space even further with a sprawling rec area anchored by a cozy gas fireplace, dedicated room for an office, and a laundry room with deep sink, storage, Kenmore washer, and NEW Whirlpool dryer (2025). Seamless indoor/outdoor living continues here with direct access to the backyard and green space with a dedicated fire pit area. Major updates give you peace of mind: NEW siding and insulation wrap (2022), AC (2020), performance Rheem water heater, and solar system (2024). A 2-car attached garage adds everyday convenience. Steps to Colony Park and playground, with forest preserve views right in your backyard for year-round nature and bird watching, plus easy access to restaurants, parks, TWO Metra stations, the library, and I-90! This home checks every box; location, layout, updates, and an unbeatable setting. Welcome home!
Location
Listed By
Listing Agent
Holly Connors
@properties Christie's International Real Estate
Similar Listings
5 Beds
4 Baths
2,100 Sq ft
$599,000
MLS# 12614384
CONTRACT

No similar listings found
Unfortunately, we don't have any similar listings at the moment. Please remove or change some of the selected filters.

Based on information submitted to the MRED as of date and time shown below. All data is obtained from various sources and has not been, and will not be, verified by broker or MRED. MRED supplied Open House information is subject to change without notice. All information should be independently reviewed and verified for accuracy. Properties may or may not be listed by the office/agent presenting the information. Some listings may have been excluded from this website.
© . http://www.mredllc.com/comms/resources/DMCA_Notice.pdf Updated: 17th April, 2026 11:51 PM (UTC)
© . http://www.mredllc.com/comms/resources/DMCA_Notice.pdf Updated: 17th April, 2026 11:51 PM (UTC)
Listing Office: @properties Christie's International Real Estate
Attribution contact:































































































































